152 W. Lemon Ave.
Arcadia, CA 91007
www.152wLemon.com
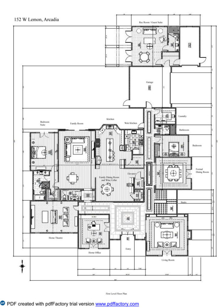
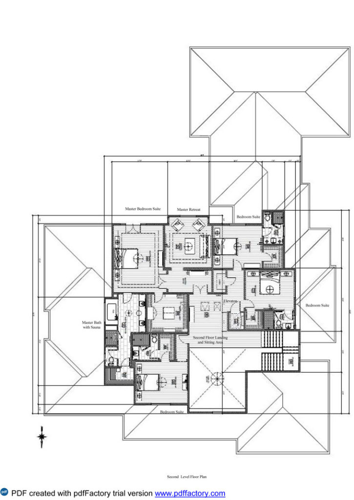
This is a brand new (2019) European style luxury home featuring a charming mix of traditional and contemporary styles. This 8.083 SqFt 2 story home has 6 bedrooms and 8 bathrooms with both stairway and elevator access. A recreation room/guest suite at the back is accessible from the main house. Entering the home from the circular driveway is a bright 2-story tall marble foyer. The 1st floor are a living room, home office, movie theatre, guest half-bath, a formal dining room, a large family room with an activity corner, a gourmet kitchen equipped with Wolf and Sub Zero appliances and a large center island. There is also a wok kitchen, walk-in pantry, wine cellar and a casual eating area with wet bar. On the lower floor are two bedrooms. 4 other bedroom suites including the master are located on the 2nd level. The master’s suite has a retreat sitting room and a private balcony overlooking the beautiful backyard. In the master bath are a jacuzzi tub, steam shower, separate toilet room and a sauna room. Bathrooms in the home are nicely finished with marble, stones and tiles. Additional custom features include a sauna, wine cellar, guest suite, a sitting area on the 2nd floor, house elevator, built-in bookcase, fireplace, cabinets, custom ceilings and beautiful modern lighting fixtures, chandeliers, shiny chrome door handles and hardware throughout, wireless access points, surveillance cameras, swimming pool and spa, circular driveway, electric driveway entry gate and 3 cars garages.
- Listing Price $4,880,000
- Year Build 2019
- Living Spave 8,083 Sq. Ft.
- Lot Size 21,959 Sq. Ft.
- Beds 6
- Baths 8
- Property Type Single Family Residence
- School District Arcadia Unified
- Baldwin Stocker Elementary School
- First Avenue Middle School
- Arcadia High School